随着技术的的发展,清洗的概念已包含有转孔(如清洗数米长的全程堵塞管)、切削(如清洗特硬厚垢层)、除锈和破碎等,因而高压清洗机的压力也达到了200~250MPa。然而,工业清洗最常用的机组参数还是70MPa、55KW.流量为40L/min。这种机组适应于单人作业,方便,经济。如果将机组功率扩大到110KW,流量则为80L/min,可以双喷枪同时作业,也可以采用多孔喷头或非手持喷枪作业。
在高压清洗机以压力和流量为坐标系的平面型谱中,每一个功率级(即每一个机座)为一个系列产品,如55KW者个系列,它的压力从30MPa至100MPa,流量则从100L/min降至30L/min.清洗机(泵)的有效功率其实是压力与流量的乘积,表示为:Pe=P*Qv/60
式中 Pe________有效功率, KW
P________ 压力, MPa
Qv_______体积流量,L/min
泵的有效功率于原动机输入功率之比称为泵机组的总效率,表示为:ηt=Pe/Pd
式中 ηt_____总效率,包括泵功率、传动效率和原动机效率,泵效率与压力成反比
Pd_____原动机所需的功率,KW
也就说当知道了清洗剂泵的压力和流量时也就知道了该机组原动机的功率。
反冲力是高压清洗机又一个重要参数。尽管清洗功率越大;作用效率越高,但是对于手喷枪作业来说,人对射流作用(反冲)的承受能力限制了机组的功率射流作用力(反冲力)为F=0.745Qv*根号P
F_____反冲力N
Qv____流量,L/min
P_____压力,MPa

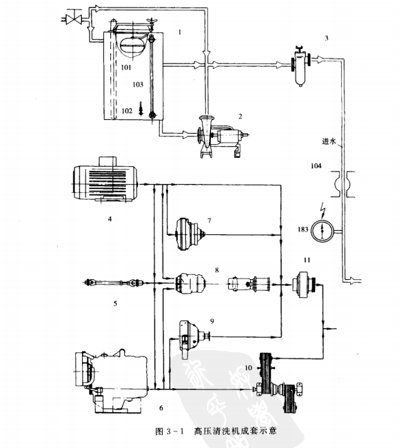
高压清洗机各主要部件的功能分别为:
(1)高压泵:用于增加水压,并将高压水输送到喷枪或喷头,这类泵可以是移动的也可以是固定的,常采用正排量塞泵形式以保证在给定泵速下流量的恒定。
(2)安全阀:该阀安装在泵的排出端,阀内设有弹簧与阀组机构,通常由弹簧将阀芯预置在关死位置。当泵压力超过预定值时,该阀打开。
(3)调节阀:该阀安装在泵的排出端,凭借控制旁通水流来达到控制高压水射流设备工作压力的目的。当系统中压力超过了预置值时,阀将部分开启。阀开启升程越高,旁通的水就越多,喷嘴处流量就越小。经阀溢流的水直接返回泵或前置水箱中。
(4)调压溢流阀:取代调压阀,即在预置压力下保证泵的全流量使用;当关闭喷枪瞬间,系统压力超过预置压力;该阀保证泵的全流量溢流,它同调压阀手动部分溢流是两个概念。
(5)脚踏控制阀:该阀的作用类似于两种类型的喷枪,其特点是操作者能够用脚动作,用以控制喷头
(6)喷枪:通过高压软管总成连接到高压泵排出端,是清洗作业较为常用的执行机构,喷枪可以按排放压力的控制阀型式近一步定义:如果阀关闭时,高压水排放到大气,则为溢流型喷枪,如果阀关闭时,高压水仍保留在系统中,则为截流型喷枪。
(7)喷头:置一个或多个喷嘴并由此形成水射流部件,喷头限制了水的过流面积,加速了水流速度并形成了所要求的射流形状。喷头与喷嘴都属于一个庞大的家族,也是高压清洗机研究的重点之一。
(8)压力表:高压水射流设备应该设置该表以显示压力变化,压力表的刻度范围至少要比设备的最大工作压力高50%。当压力脉动较大时,应设置稳压容器以精确显示压力读数。